INSCRIPTION PRO
ProntoPro
Géomètre-Expert
Seine-Saint-Denis
Épinay-sur-Seine
Géomètre Sur Mesure
Géomètre-Expert
·
Membre depuis 1 mois
Seine-Saint-Denis
Épinay-sur-Seine
Commencer
Avis des clients
Obtenez des devis pour voir les avis.
Contrôles de sécurité
Téléphone portable valide
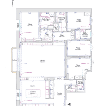
Géomètre topographe et fondateur de « Géomètre sur mesure », une entreprise individuelle spécialisée dans l'élaboration de plans ou modèles « tel que construit » et la certification de surfaces pour les différents acteurs de la construction. Grâce à mon scanner 3D de haute précision, je réalise des plans détaillés de l'existant (plan d’immeuble, plan d’école, plan de bureau,…) et des modèles 3D. Si vous avez besoin de plans sur mesure, je me tiens à votre disposition pour vos accompagner dans la réalisation de vos plans ou modèles 3D.
X
Obtenez 4 Géomètre-Expert devis des fournisseurs de services disponibles, comparez.
153 Géomètres-Experts prêt à servir.
Commencer
Obtenir un devis >
Obtenez un devis pour 4 Géomètre-Expert